ALGEMEEN
Voor deze bijzondere herontwikkeling is door architect Schaeffer een studie en vlekkenplan opgesteld, waarin diverse woonconcepten zijn verkend. Centraal in het plan staat het behoud van de karakteristieke ruimtelijkheid van het monumentale pand, met name in de tempelruimte, waar gekozen is voor unieke entresolwoningen.
Om de bijzondere beleving van de tempel te behouden, is binnen het bestaande stramien van de oorspronkelijke constructie gewerkt. De entresolwoningen maken optimaal gebruik van de hoogte en de lichtinval van het gebouw, waardoor elementen zoals het cassetteplafond zichtbaar blijven en bijdragen aan een unieke woonervaring.
In totaal zijn drie varianten uitgewerkt, met respectievelijk 8, 11 en 15 woningen. Deze variëren in grootte en indeling, zodat er ruimte is voor verschillende woonwensen en doelgroepen.
HISTORIE
Het pand aan de De Ruijterstraat 67 in Den Haag is gebouwd door K.P.C. de Bazel en betreft een gemeentelijk monument. Het was een vrijmetselaars- en theosofentempel. Het tempelcomplex is van grote cultuurhistorische waarde als zeldzaam Nederlands voorbeeld van westers-esoterische rituele architectuur.
In de loop der jaren is het gebouw, in combinatie met de Zeestraat 82, in gebruik geweest door diverse gerenommeerde instellingen, waaronder De Grote Koninklijke Bazar, het Postmuseum, het Museum voor Communicatie (Museum Beeld & Geluid).
LOCATIE EN BEREIKBAARHEID
Het object is uitstekend bereikbaar met zowel eigen vervoer als met het openbaar vervoer. De Zeestraat is centraal gelegen
in Den Haag en bevindt zich in het verlengde van het Noordeinde richting Scheveningen. Via de Javastraat, Koningskade en Zuid-Hollandlaan, wordt binnen enkele autominuten de Utrechtsebaan bereikt, die aansluiting geeft op het Prins Clausplein (A4, A12, A13). Station Den Haag Centraal bevindt zich op circa 10 minuten fietsafstand en is binnen 15 minuten bereikbaar met het openbaar vervoer. Tramlijn 1 en buslijnen 22 en 24 stoppen op loopafstand van het gebouw en zorgen voor een directe verbinding met het centrum en omliggende wijken.
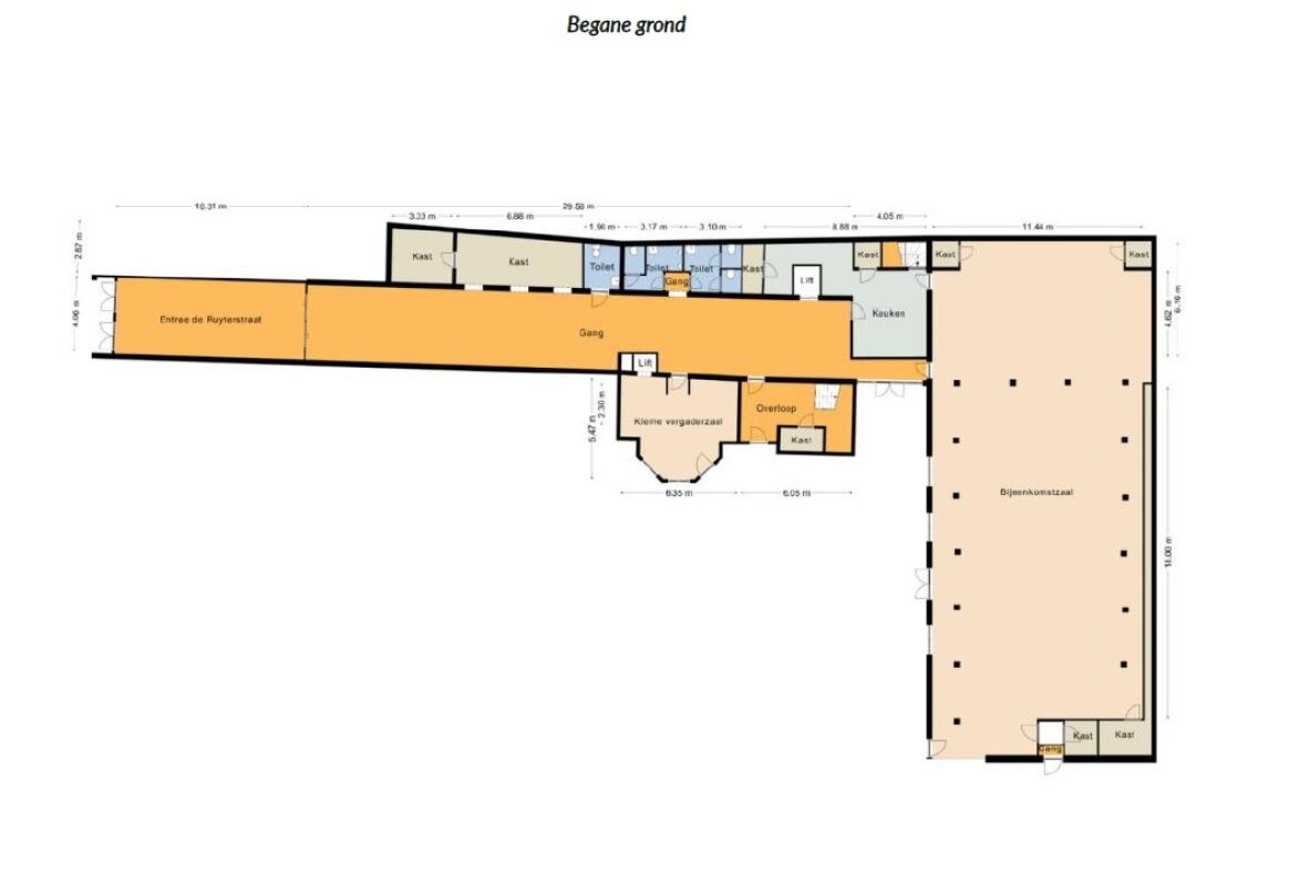
METRAGE
Het gedeelte aan de De Ruijterstraat omvat ca. 1.284 m² vvo (ca. 1.471 m² bvo) en is zelfstandig te koop als potentieel herontwikkelingsobject naar Wonen. (zie schetsontwerp van Studio Schaeffer)
Het gedeelte aan de De Ruijterstraat kan eventueel ook in combinatie met de Zeestraat 82 worden gekocht. (zie hiervoor aanmelding op Funda in Business)
KOOPPRIJS
€ 3.250.000,- k.k.
KADASTRALE GEGEVENS
Gemeente : 's-Gravenhage
Sectie : O
Nummer : 8263 A2
Soort : Eigen grond
LEVERINGSDATUM
In overleg.
NOTARIS
Nader door koper te bepalen.
KOOPOVEREENKOMST
Deze wordt door voornoemde notaris opgemaakt nadat partijen overeenstemming hebben bereikt zonder voorbehouden.
ZEKERHEIDSSTELLING
Tot zekerheid voor de nakoming van de verplichtingen van koper dient deze binnen vijf werkdagen na ondertekeningen van de koopovereenkomst een waarborgsom te storten in handen van de notaris of een onvoorwaardelijke bankgarantie te stellen ter grootte van 10% van de koopsom.
OPLEVERING
Het pand wordt opgeleverd in de huidige staat, leeg en ontruimd.
Overdracht
- Vraagprijs
- € 3.250.000 k.k.
- Status
- Beschikbaar
- Aanvaarding
- In overleg
Bouw
- Type
- Kantoorruimte
- Soort bouw
- Bestaande bouw
- Bouwjaar
- 1874
Oppervlakten en inhoud
- Beschikbare oppervlakte
- 1284 m2
Energielabel
- Energielabel
- onbekend
Parkeergelegenheid
- Aantal overdekte parkeerplaatsen
- geen
- Aantal onoverdekte parkeerplaatsen
- geen