OBJECT/ LOCATIE
Het kantoorgebouw de “Haagse Arc” is gelegen op de hoek van de Maanweg / Regulusweg. Door haar unieke ligging is het kantoorgebouw aangesloten op een van de belangrijkste verkeersaders van Den Haag en heeft het een directe verbinding met het nationale wegennet A12/A4. In de Binckhorst zijn diverse grote bedrijven gevestigd, onder andere KPN Telecom en SDU, welke laatste in de “Haagse Arc” is gevestigd. Voorzieningen in de omgeving bepalen mede de kwaliteit van een locatie. Daarnaast zijn dichtbij alle denkbare winkel- en horecavoorzieningen te vinden in het historisch centrum van Voorburg aan de Herenstraat. Een hotel is te vinden op het stationsplein van Voorburg.
BEREIKBAARHEID
De bereikbaarheid met de auto is zeer goed. Het Prins Clausplein is via de oprit bij Voorburg zeer snel te bereiken. Dit knooppunt van het rijkswegennet, met directe verbindingen naar Amsterdam/Schiphol A4, Utrecht A12 en Rotterdam A13, biedt optimale ontsluiting in alle richtingen. Ook vormen de Binckhorstlaan en Mercuriusweg belangrijke verbindingsroutes met de Haagse stedelijke agglomeratie. Met de stations Den Haag C.S., Den Haag H.S. en Station Voorburg in de directe omgeving is er tevens een prima ontsluiting van de locatie met het openbaar vervoer aanwezig. In de directe omgeving ligt een bushalte met drie buslijnen, i.c. 26, 23 en 48. Deze buslijnen verbinden de Binckhorst met de drie stations.
BESCHIKBARE METRAGE
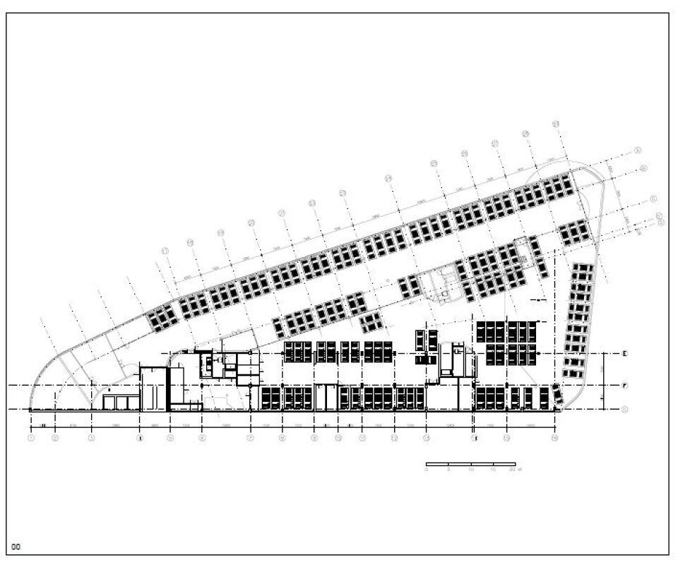
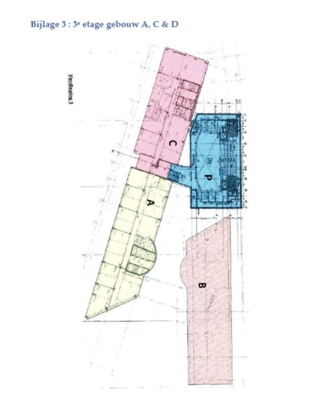
de “Haagse Arc” is totaal groot ca. 22.821 m² vvo kantoorruimte als volgt verdeeld
Gebouw Metrage (in m² vvo)
Gebouw A ca. 9.500 m²
Gebouw B ca. 6.791 m²
Gebouw C ca. 5.180 m²
Gebouw D ca. 1.350 m²
Gebouw A-C, B en D ca. 22.821 m²
Deelverhuur mogelijk vanaf ca. 250 m².
PARKEERMOGELIJKHEDEN
Het object beschikt over een garage met 3 bouwlagen met in totaal 351 parkeerplaatsen, die allen onder en naast het gebouw gelegen zijn. Voorts liggen voor de entree aan de zijde van de Regulusweg 12 plaatsen, terwijl de achterliggende strook ruimte biedt aan 56 plaatsen. De totale parkeercapaciteit komt uit op 351 + 12 + 56 = 419 plaatsen. Daarnaast beschikt het gehuurde over een grote overdekte fietsenstalling en een speciale entree voor expeditie.
WIJZE VAN OPLEVERING
Het object wordt geheel naar wens van de huurder opgeleverd o.a. inclusief:
- scheidingswanden met glaspanelen en deuren;
- luchtbehandeling met topkoeling;
- centrale verwarmingsinstallatie met individueel regelbare thermostaatkranen;
- kabelgoten met snelle datatransmissie (CAT 5-E), up te graden naar Cat 6;
- nieuw projecttapijt;
- luxe sanitaire voorzieningen op de verdieping;
- fraaie entreepartij op de begane grond;
- nieuw systeemplafond met verlichting en luchtroosters;
- keukenfaciliteit;
- intercom systeem.
DATUM VAN OPLEVERING
In overleg.
HUURPRIJZEN
kantoorruimte:
vanaf € 100,-- p/m² per jaar te vermeerderen met de wettelijk verschuldigde omzetbelasting (BTW).
Huurprijs is inclusief de huurderbijdrage voor de investeringen in het inbouwpakket in het kader van een turn-key oplevering en de investering in installaties.
archiefruimte:
€ 30,-- p/m² per jaar te vermeerderen met de wettelijk verschuldigde omzetbelasting (BTW).
parkeerplaatsen:
€ 1.300,-- per plaats per jaar te vermeerderen met BTW.
VASTE SERVICE- EN ENERGIEKOSTEN
Vaste bijdrage ter grootte van € 42,50 per m² per jaar (op basis van fixed fee, niet verrekenbaar zodat huurder niet geconfronteerd wordt met enige bijbetaling achteraf) ten behoeve van de volgende leveringen en diensten:
Energiekosten:
- Gasgebruik inclusief vastrecht;
- Elektriciteitsverbruik inclusief vastrecht;
- Waterverbruik inclusief vastrecht.
Servicekosten:
- Onderhoud en periodieke controle van technische installaties en standleidingen;
- Onderhoud en periodieke controle van hemelwaterafvoer, goten en daken;
- Periodiek onderhoud van E- en W-installaties;
- Periodiek liftonderhoud en jaarlijkse liftkeuring door Liftinstituut;
- Periodiek onderhoud van riolering en standleidingen;
- Periodieke onderhoud van CV-installatie alsmede het verhelpen van storingen;
- Tuinonderhoud en onderhoud van parkeerterrein, fietsenstalling en bestrating;
- Glasbewassing met een frequentie van 1 keer per 6 maanden.
HUURTERMIJN
5 jaar met de mogelijkheid om de huurovereenkomst met 5 jaar te verlengen.
HUURPRIJSBETALING
Huur, servicekosten en de wettelijke verschuldigde omzetbelasting per kwartaal bij vooruitbetaling.
Overdracht
- Huurprijs
- € 100 / m² / jaar
- Status
- Beschikbaar
- Aanvaarding
- In overleg
Bouw
- Type
- Kantoorruimte
- Soort bouw
- Bestaande bouw
- Bouwjaar
- 1992
Oppervlakten en inhoud
- Beschikbare oppervlakte
- 21471 m2
- Units
- Units vanaf 547 m2
Energielabel
- Energielabel
- C
Parkeergelegenheid
- Aantal overdekte parkeerplaatsen
- 100
- Aantal onoverdekte parkeerplaatsen
- geen