OBJECT/ LOCATIE
het betreft een modern bedrijfspand, waar de 1e en 2e verdieping voor verhuur beschikbaar komen, alsmede 8 parkeerplaatsen op eigen terrein. Het bedrijfspand is gelegen in het ‘Forepark’ op een uitstekende zichtlocatie, hoek Wolga/Donau, tegenover het ADO stadion.
BEREIKBAARHEID
door de gunstige ligging van het object, dat een zichtlocatie heeft aan de Rijksweg A12 nabij het Prins Clausplein en verkeersplein Ypenburg is het object met eigen vervoer uitstekend bereikbaar. Het Prins Clausplein heeft een aansluiting op de A12 (Utrecht/Den Haag) en de A4 (Rotterdam/Den Haag/Amsterdam).
De doorgaande weg (Donau) in het bedrijventerrein aangesloten op de A12 (op- en afrit Nootdorp). Hierdoor is de bereikbaarheid van het bedrijventerrein optimaal.
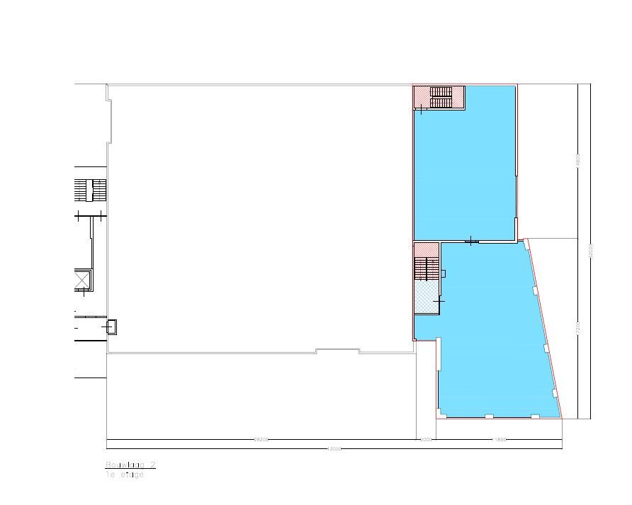
BESCHIKBARE METRAGE
1e verdieping: van ca. 308 m² vvo kantoorruimte
2e verdieping: van ca. 257 m² vvo kantoorruimte
Deelverhuur bespreekbaar
PARKEERMOGELIJKHEDEN
ca. 8 parkeerplaatsen op eigen terrein. Op loopafstand van het kantoorpand bestaat tevens de mogelijkheid om extra parkeerplaatsen te huren op het parkeerterrein P1 gelegen aan de Wolga. Op dit parkeerterrein zijn circa 125 parkeerplaatsen aanwezig.
WIJZE VAN OPLEVERING
- representatieve entree
- postbus met bel-/intercominstallatie
- systeemplafonds met verlichtingsarmaturen
- verwarming d.m.v. CV-installatie en radiatoren
- mechanische ventilatie + airco-units
te openen ramen
- verticale zonwerende screens op de zonbelaste gevels
- gecompartimenteerde kabelgoten langs binnenzijde buitengevel met bestaande data- en telefoonbekabeling
- dubbele toiletgroep per verdieping
- pantryblok per verdieping
- bestaande scheidingswanden
- bestaande vloerbedekking
ENERGIELABEL
C label
DATUM VAN OPLEVERING
Per direct
HUURPRIJZEN
kantoorruimte
€ 115,-- per m² per jaar te vermeerderen met de wettelijk verschuldigde omzetbelasting (BTW).
parkeerplaatsen
€ 1.000,-- per parkeerplaats per jaar te vermeerderen met BTW
VASTE SERVICE- EN ENERGIEKOSTEN
€ 37,50 p/m² per jaar te vermeerderen met BTW.
- gasverbruik inclusief vastrecht
- waterverbruik inclusief vastrecht
- elektraverbruik inclusief vastrecht (van het gehuurde, algemene ruimten en installaties)
- onderhoud installaties
- onderhoud brandblussers/haspels
- overig klein onderhoud algemene ruimten
- onderhoud buitenterrein inclusief groenvoorziening
- schoonmaak algemene ruimten
- glasbewassing buitenzijde gebouw
- glasverzekering ten behoeve van glas in buitengevel
- eventuele gemeentelijke heffingen ten behoeve van gebruiker
- vuilcontainers/vuilafvoer
- beheervergoeding 5%
HUURTERMIJN
5 jaar met de mogelijkheid de huurovereenkomst met 5 jaren te verlengen.
Overdracht
- Huurprijs
- € 115 / m² / jaar
- Status
- Beschikbaar
- Aanvaarding
- In overleg
Bouw
- Type
- Kantoorruimte
- Soort bouw
- Bestaande bouw
- Bouwjaar
- 2002
Oppervlakten en inhoud
- Beschikbare oppervlakte
- 565 m2
- Units
- Units vanaf 257 m2
Energielabel
- Energielabel
- C
Parkeergelegenheid
- Aantal overdekte parkeerplaatsen
- geen
- Aantal onoverdekte parkeerplaatsen
- 8